
|
CORN CRIB Nebraska
The predominant crop across the entire
state of Nebraska, along the interstate and off the
beaten path in the rural communities is corn.
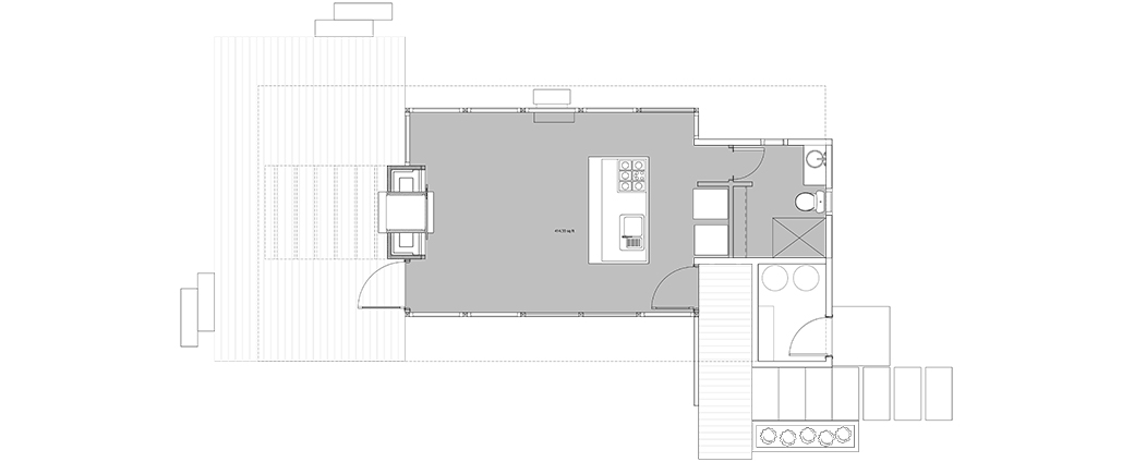
This project arose as the need for a temporary
living space for a single person while a larger main
house was being constructed. The 'corn crib'
is sited adjacent to a 100 acre cornfield, with
stunning distant views to the south and west.
The approach was to site the house along a south by
southwest axis for immediate views to the corn and
distant views to the hills rising along the border
of the cornfield. The 'crib' is elevated above
the ground by a foot and a half on concrete piers to
minimize the impact to the site and expense of a
traditional foundation. This in turn also
creates a feeling of living among the corn instead
of adjacent to. The program is fairly simple
with a studio apartment concept of open living and a
large deck. The main materials of wood and
brick blend with the large expanses of glass and the
low horizontal planes pay hommage to the dominant
horizon that is Nebraska.
       
|